Flat Bush School Road
Flat Bush, Auckland
The Parkville development brings you homes built for modern life situated on the edge of Barry Curtis Park, one of Auckland’s most expansive nature reserves. Construction is underway and due to be completed at the end of 2022.
This elegant Scandinavian styled development offers a range of layouts to suit your needs including 2 brm apartments, 2,3 and 4 bedroom homes. The interior of each unit is configurated to maximise natural light with a focus on incorporating functionality and comfort.
Parkville offers a rare opportunity to live in a modern development next to Barry Curtis Park – an expansive green area. Your family can enjoy easy access to year-round walking, cycling and playgrounds, helping you find balance in our increasingly busy lives. Barry Curtis Park offers more than 50 kilometers of natural wetlands, native bush and is the green jewel of the Flatbush and Ormiston communities.
– Apartments: Three layouts of Apartments, offering 2 Bedrooms, 1 Bath and a carparking space. Floor areas range from 56m²-68m². Priced from $629,000. Designed with ease of care in mind, you can spend your time living and enjoying the surroundings.
– Lot 10: Simple elegant interior design compliments a three-story home unit overlooking Barry Curtis Park. Cleverly configured bedroom living maximises space across all levels giving the master bedroom sunny, private rooftop views. Ground floor living has all your amenities within easy reach extending onto an outdoor patio. Modern kitchen facilities include stainless-steel appliances and a stand-alone bench for increased space and storage.
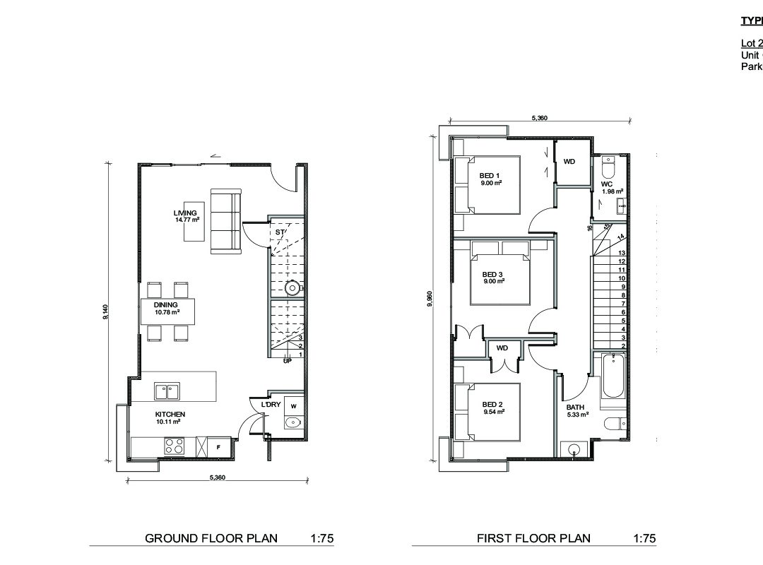
– Lots 11 & 19 – A rare low maintenance 4 bedroom design with extra on-street parking to accommodate guests and larger families. Spend more time with your family in the flow-through kitchen and dining areas designed to bring your home together. The stylish modern landscaping balances privacy with community and the bedrooms are purposefully spaced with natural light in mind. This is the perfect unit for those looking for a larger home unit at entry level prices.



























